Cottone Indelicato logo COTTONE + INDELICATO

Villa B&D

Villa B&D reinventa un edificio esistente attraverso un linguaggio contemporaneo, integrando il volume nel paesaggio siciliano con terrazze che seguono la topografia, aperture studiate per la luce e un portico in corten che dialoga con l’ambiente circostante.

cover
Cliente Privato
Ubicazione Cianciana (Ag)
Status Completato
Anno completato 2013
Dimensioni Abitazione: 80 mq - Aree esterne: 400 mq
Partner -
Tema Ristrutturazione edilizia, Architettura paesaggistica
Tipologia Residenziale
Programma Abitazione per una coppia, stanza ospiti, living, spazi outdoor, piscina

Vicitore dell'Italian Pool Award 2015

Premio piscineoggi

Menzione al Premio inarch 2014

inarch
Disegno 1
Disegno 2
Disegno 3
Disegno 4

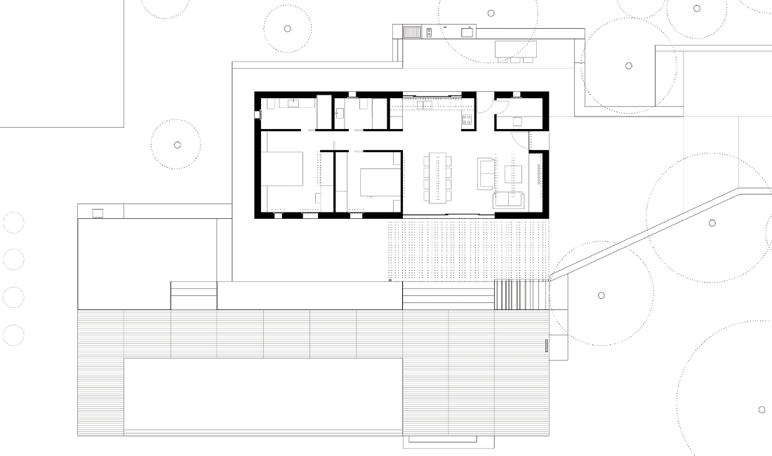
La Villa B&D sorge su un lotto in lieve pendio rivolto verso il paesaggio agrario siciliano. Il progetto prevede la ristrutturazione di un edificio senza valore architettonico, trasformandolo in un volume contemporaneo integrato con il contesto naturale.
Il volume viene ridotto in altezza con un tetto piano che integra pannelli solari e fotovoltaici per l’autonomia energetica.
Gli spazi esterni sono organizzati in terrazze che seguono la topografia, creando continuità con l’abitazione. Le aperture, di altezza costante ma larghezza variabile, movimentano i prospetti e controllano la luce interna.
Il fronte principale è definito da una tettoia in corten con sottili elementi verticali, che protegge la vetrata del living e crea un portico verso il paesaggio.
La distribuzione interna divide l’area giorno e le camere verso ovest, affacciate sul paesaggio, dai servizi e la cucina, collegati alla terrazza barbecue con piano e tavolo sul retro.
L’ingresso si caratterizza per un cancello in corten che integra portoncino, citofono, buca lettere e vano contatori in un unico sistema.

Terrazze sul paesaggio

Gli spazi esterni si organizzano in una serie di terrazze, ciascuna con una funzione precisa, che seguono il naturale abbassamento del terreno: accanto alla zona giorno si trova la terrazza principale; pochi gradini più in basso lo spazio bar; e, a una quota inferiore, l’area solarium con piscina.

Espressività volumetrica

Il living

Il living è un ambiente luminoso, dove una grande vetrata si apre sul paesaggio creando un dialogo continuo tra interno ed esterno.

Dialogo con la natura

Il progetto dell'illuminazione

L’illuminazione è progettata sia per supportare le funzioni esterne sia per valorizzare l’estetica complessiva. Il living esterno è l’area più illuminata, con tagli di luce che riprendono il ritmo delle doghe in corten della tettoia. Sulle terrazze e sul deck, invece, la luce è più bassa e discreta, integrata nei gradini o sotto le sedute.

Dialogo con la natura

Arredi bianchi e spazi puri

Il progetto prevede il disegno di arredi su misura che organizzano lo spazio in un’unica geometria essenziale.

Dettaglio 2
Dettaglio 2

La cucina

La luce radente entra dalla finestra a taglio, portando il paesaggio dentro la cucina. La superfice chiara del marmo di Carrara e i dettagli minimali amplificano la sensazione di leggerezza dello spazio.

Dettaglio 2
Dettaglio 2

L'estetica del corten

Il progetto utilizza il corten in diverse declinazioni, adottando un linguaggio espressivo che valorizza l’uso di elementi sottili e vibranti. Il fronte principale è definito da una tettoia in corten con sottili elementi verticali, che protegge la vetrata del living e crea un portico verso il paesaggio.

Dettaglio 3b
Dettaglio 3

Il deck la piscina

La piscina rettangolare, con rivestimento nero e bordo a cascata, riflette il cielo e il paesaggio siciliano. È inserita su una piattaforma in listoni di ipé, che rende il solarium confortevole e armonioso con l’architettura e l’ambiente.

Dettaglio 3b
Dettaglio 3