Cottone Indelicato logo COTTONE + INDELICATO

La Passerella nella Valle dei Templi

Concepita come un elemento scultoreo, la passerella si integra con il suggestivo contesto della Valle dei Templi di Agrigento. Il progetto nasce dal dialogo con le forme uniche del luogo, traendo ispirazione dalle peculiarità del paesaggio e dell’architettura greca.

cover
Cliente Parco Valle dei Templi
Ubicazione Agrigento
Status Completato
Anno concorso 2012; progetto 2013; cantiere 2014-2015
Dimensioni Area passerella: 55 mq (25mx 2.2m)- Aree esterne: 150 mq
Partner Progettista Joan Puigcorbè - giovane arch.: Sofia Montalbano - Strutture: ABGroup Ingegneria
Tema Architettura contesto storico
Tipologia Infrastrutture
Programma Passerella pedonale, spazio di ingresso

Vicitore del Premio Quadranti 2015

Premio Quadranti

Progetto presente al Padiglione Italia Biennale di Venezia 2014

biennale

Opera finalista del Premis FAD 2016 Barcellona

Premio FAD
Disegno 1
Disegno 2
Disegno 3
Disegno 4

La finalità principale della passerella pedonale è quella di restituire unità al percorso del parco archeologico, diviso dall’attraversamento della strada statale 118; e di consentire una fruizione sicura del parco, restituendo al visitatore la percezione di questo come luogo unico ed organico.
Le scelte progettuali nascono dall’interpretazione concettuale degli elementi formali architettonici e naturali presenti nel parco archeologico. Questi riferimenti vengono reinterpretati, trasfigurati e combinati tra loro secondo i criteri progettuali stabiliti: leggerezza, trasparenza, verticalità, rapporto luce - ombra, espressività del materiale, dialogo paesaggistico. Lo slancio verticale delle colonne dei templi, caratterizzate dalle scanalature che accentuano la rettilineità degli elementi, i blocchi monolitici del vicino altare monumentale e la verticalità organica tipica della vegetazione cui questi elementi rimandano, costituiscono i riferimenti progettuali, che una volta rielaborati, portano agli elementi fondamentali del progetto.
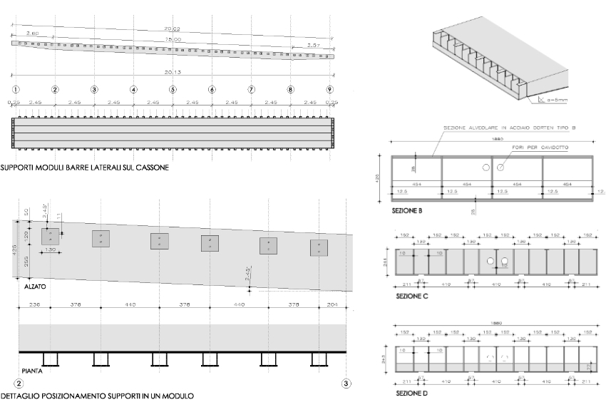
La struttura è costituita da un cassone a sezione alveolare rastremata alle estremità e da protezioni laterali formate da barre di diverse altezze, disposte a distanze modulari.

L'ispirazione del luogo

L’aspetto romantico delle rovine, il concetto di non finito cui queste rimandano, le operazioni di restauro per anastilosi compiute nel corso del tempo, hanno portato ad un’immagine della Valle dei Templi caratterizzata da elementi di diverse altezze e dimensione, creando differenti moduli espressivi e formali. Le differenti altezze delle colonne del vicino tempio di Eracle sono state trasfigurate e reinterpretate progettualmente nella passerella, in una sequenza dinamica di barre verticali di diverse altezze, che generano una vibrazione della luce, producendo un effetto di trasparenza e di smaterializzazione.

Espressività volumetrica

Il materiale

La scelta del corten per la passerella è motivata non solo dalla durabilità, ma anche dalle qualità estetiche:
la patina di ruggine, con le sue variazioni cromatiche, i cambi di tono, la mutevolezza e l’opacità, crea un materiale naturale e sfaccettato, capace di integrarsi armoniosamente nel paesaggio.

Dialogo con la natura

Il dettaglio

Il progetto è stato curato nei minimi dettagli, in modo che ogni collegamento, saldatura e bullonatura diventi parte dell’estetica, anche alla vista ravvicinata.

Dialogo con la natura

Spazialità astratta e dinamica

L’esperienza dell’utente nell’attraversamento si arricchisce di suggestioni: il ritmo degli elementi verticali, nel loro alternarsi, dialoga con il passo dell’andatura. Lo sguardo si apre sulla costa, sul paesaggio in movimento e sugli scorci del Tempio di Eracle.

Dettaglio 2
Dettaglio 2

La Scultura

Il progetto ha immaginato l’inserimento di un oggetto funzionale, destinato a un sito di tale importanza, come la creazione di una scultura: un’installazione d’arte contemporanea capace di respirare accanto all’architettura antica.

Dettaglio 2
Dettaglio 2

La pavimentazione

Sulla pavimentazione in pietra arenaria locale si proiettano le ombre dalle barre laterali offrendo un disegno mutevole al variare del tempo

Dettaglio 3b
Dettaglio 3