Cottone Indelicato logo COTTONE + INDELICATO

Villa Paesaggio

Un progetto paesaggistico nel territorio di Castellammare del Golfo

villa paesaggio
Cliente C-build
Ubicazione Castellamare del Golfo (Tp)
Status In corso
Anno progetto 2020
Dimensioni Residenza 150mq, Lotto 6.000mq
Partner -
Tema architettura paesaggistica
Tipologia Residenziale
Programma Villa con 3 camere, piscina, terrazza
Disegno
Disegno
Disegno
Disegno

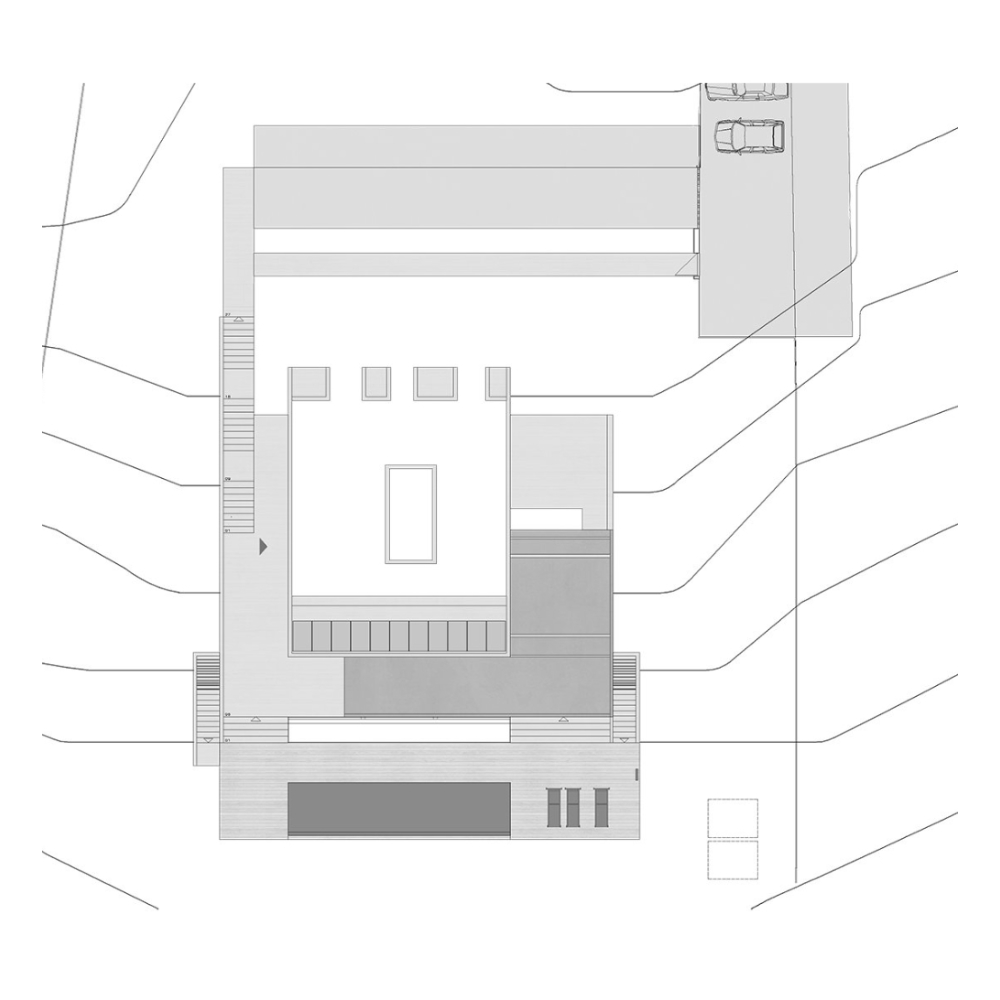
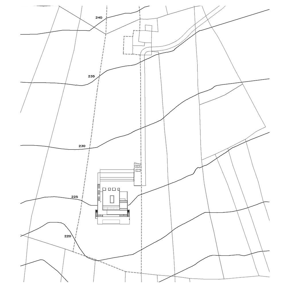
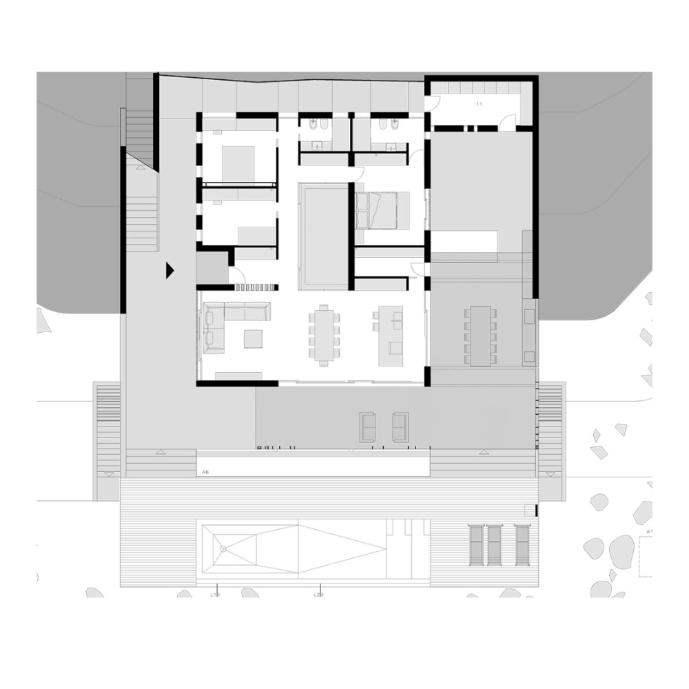
La casa rurale è situata su un lotto inclinato, orientato verso il suggestivo paesaggio di Castellammare. Il volume edilizio si integra armoniosamente con la topografia circostante, con il lato superiore che coincide con il profilo del terreno e quello inferiore che si raccorda al piano di calpestio. Gli spazi esterni si caratterizzano da una tettoia in corten sul lato est, mentre a quota inferiore si trova la piscina a sfioro, che incornicia perfettamente la vista panoramica. La disposizione interna degli spazi è organizzata attorno alla corte centrale, che offre una vista privilegiata sul Pizzo Monaco, creando una continuità visiva e percettiva tra i due lati del paesaggio: a sud-est verso il mare e a nord verso la montagna. Il lato sud ospita la zona giorno, strettamente collegata alla tettoia e agli spazi esterni, mentre a ovest si trovano le due camere da letto con il bagno principale. La zona notte è completata dal lato est, dove si trova la camera principale con il proprio bagno en-suite, garantendo privacy e comfort.

L'inserimento nel paesaggio

villa

Il living

villa