Cottone Indelicato logo COTTONE + INDELICATO

Cucina Minimal

Quando il design incontra la funzionalità: una cucina che trasforma lo spazio

cover
Cliente Privato
Ubicazione Sciacca (Ag)
Status Completato
Anno 2020
Dimensioni 3,8 x 2,5 m
Partner
Tema Design
Tipologia arredi interni
Programma Cucina in un living minimale
Disegno 1
Disegno 2
Disegno 3
Disegno 4


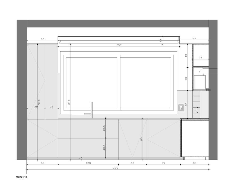
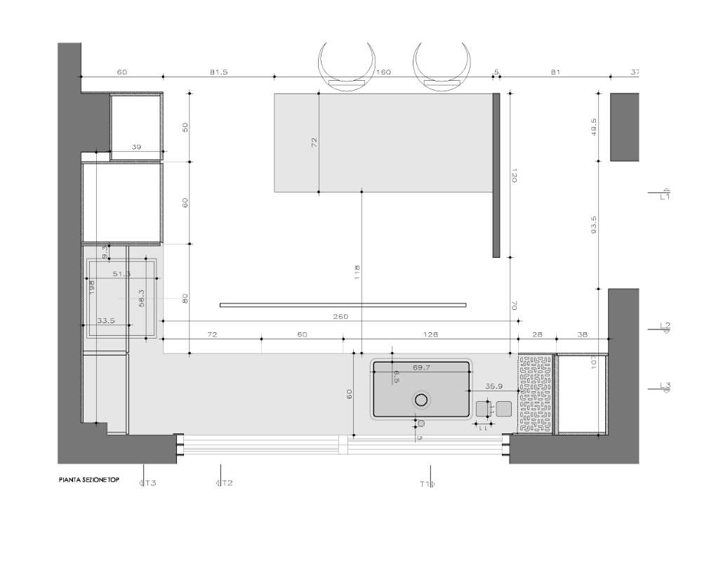
Il progetto della cucina minimal si inserisce all'interno di una ristrutturazione, con l'obiettivo di creare una continuità armoniosa con l'ambiente living. Questo ha offerto l'opportunità di risolvere alcune problematiche spaziali e funzionali. La prima riguarda l’occultamento delle sporgenze dei pilastri strutturali, che sono stati integrati all’interno dei mobili. La seconda riguarda la gestione della circolazione, in particolare l’ingresso al living, posto sul lato stretto della cucina. Questa esigenza è stata affrontata con l'inserimento di un setto verticale, che definisce in modo chiaro i percorsi e la funzionalità dello spazio. Per le superfici a vista, è stato scelto il Solid Surface LG Hi-Macs, un materiale che ha risposto perfettamente alle necessità funzionali (durevolezza, igiene, resistenza all’acqua) e estetiche (omogeneità, continuità materica, levigatezza e purezza del colore). Il risultato finale è frutto della competenza e dell’esperienza di Build Design, che ha saputo valorizzare le straordinarie qualità del materiale HI-MACS®, distribuito da Primek.

Il contesto

Cucina Minimal è inserita in un progetto di ristrutturazione di una villa unifamiliare sul Monte Kronio a Sciacca.
La cucina è un ambiente di 3,8 x 2,5 m che si fonde con lo spazio rettangolare del soggiorno/pranzo, formando un unico open space aperto sul paesaggio costiero siciliano.

Tavolo Piegato

Uno spazio luminoso e funzionale

La finalità della massima ergonomia e funzionalità delle attività culinarie si riflette nell’ampio spazio di lavoro continuo e monomaterico che si sviluppa ad elle ed è corredato da soluzioni specifiche per lo scolapiatti, lo scolaposate e il portaspezie. Sul lato opposto, a definire lo spazio cucina, vi è un mobile con cassetti dove è prevista una soluzione a bar con sgabelli dalla parte esterna.

Tavolo Piegato

Lo scolapiatti

Grazie a un lavoro artigianale preciso e rigoroso, è stato possibile adattare il progetto alle specificità dello spazio, ottenendo al contempo un alto livello qualitativo nella cura dei dettagli esecutivi.

Tavolo Piegato
Tavolo Piegato